Diese gepflegte und ruhig gelegene Wohnung überzeugt mit einer zentralen Lage und einer angenehmen Wohnatmosphäre. Die hellen und gut geschnittenen Räume bieten ein gemütliches Wohnambiente.
Miete











Diese gepflegte und ruhig gelegene Wohnung überzeugt mit einer zentralen Lage und einer angenehmen Wohnatmosphäre. Die hellen und gut geschnittenen Räume bieten ein gemütliches Wohnambiente.
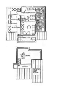
Die Wohnung (ca. 63,75m²) ist wie folgt aufgeteilt:
Eingangsbereich,/Diele, Wohn- und Esszimmer direktem Zugang zum Balkon, Schlafzimmer, Bad mit Badewanne und WC, Küche
Im Untergeschoss des Gebäudes steht eine Gemeinschaftswaschmaschine zur Verfügung, die gegen Entgelt genutzt werden kann. Zusätzlich gehört ein eigener Kellerraum zur Wohnung, der ausreichend Stauraum bietet. Ein Stellplatz direkt vor dem Haus ist der Wohnung ebenfalls zugewiesen und sorgt für bequemes Parken.





Sie sehen gerade einen Platzhalterinhalt von Elfsight. Um auf den eigentlichen Inhalt zuzugreifen, klicken Sie auf die Schaltfläche unten. Bitte beachten Sie, dass dabei Daten an Drittanbieter weitergegeben werden.
Mehr Informationen