Diese Hochparterre-Wohnung befindet sich in einer 8-stöckigen Wohnanlage in der Konrad-Adenauer-Straße.
Sie bietet auf ca. 63,46 m² eine durchdachte und komfortable Raumaufteilung:
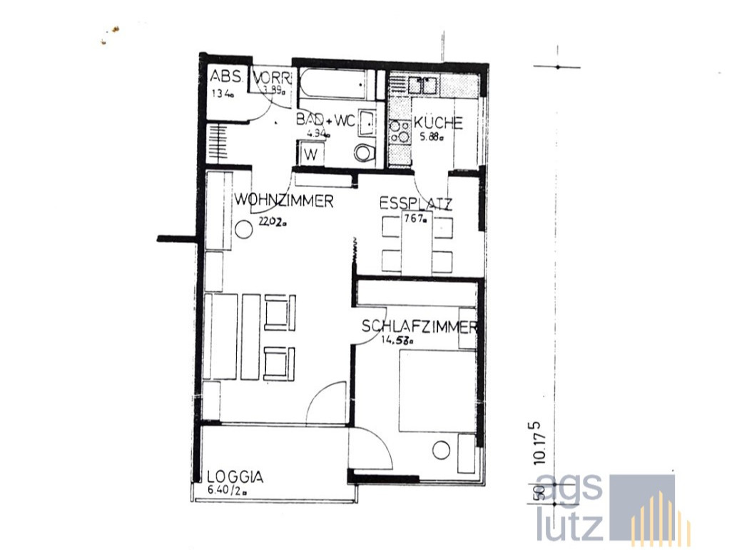
Der lichtdurchflutete Wohnbereich lädt zum Entspannen ein und bietet ausreichend Platz zur Erholung nach dem Feierabend.
Ein besonderes Highlight der Wohnung ist der Balkon, der einen freien Blick auf die umliegenden Grünflächen gewährt.
Die Küche ist nicht nur funktional gestaltet, sondern auch geschickt in unmittelbarer Nähe zum Essbereich gelegen.
Zusätzlich verfügt die Wohnung über ein großzügiges Schlafzimmer sowie einen praktischen Abstellraum im Eingangsbereich.
Praktische Extras wie ein Stellplatz für Ihr Auto, ein geräumiger Keller für zusätzlichen Stauraum und Trockenraum sowie ein Fahradkeller machen diese Immobilie besonders attraktiv.

















